祖父様から受け継いだコンクリート造の住まいをリノベーション!住みやすく明るいお家へ
一度は他社でお断りされたコンクリート造の戸建て住宅。
お客様のご厚意により2日間限定で公開いたします!
今回のお施主様はN様。
お祖父様から受け継いだ、耐久性の高いコンクリート造の住まい。
暮らしに合わせて間取り変更を検討しましたが、構造が特殊であることを理由に複数社にお断りされてしまいます。
「新築するしかないか」と半ばあきらめていたところに、コンクリート造の住まいを改装した実績のあるユニテとご縁をいただきました。
お施主様のご厚意により2日間限定での公開です。
コンクリート造でもあきらめない、MAGHAUSのリノベーションをぜひご覧ください。
見学会のポイント
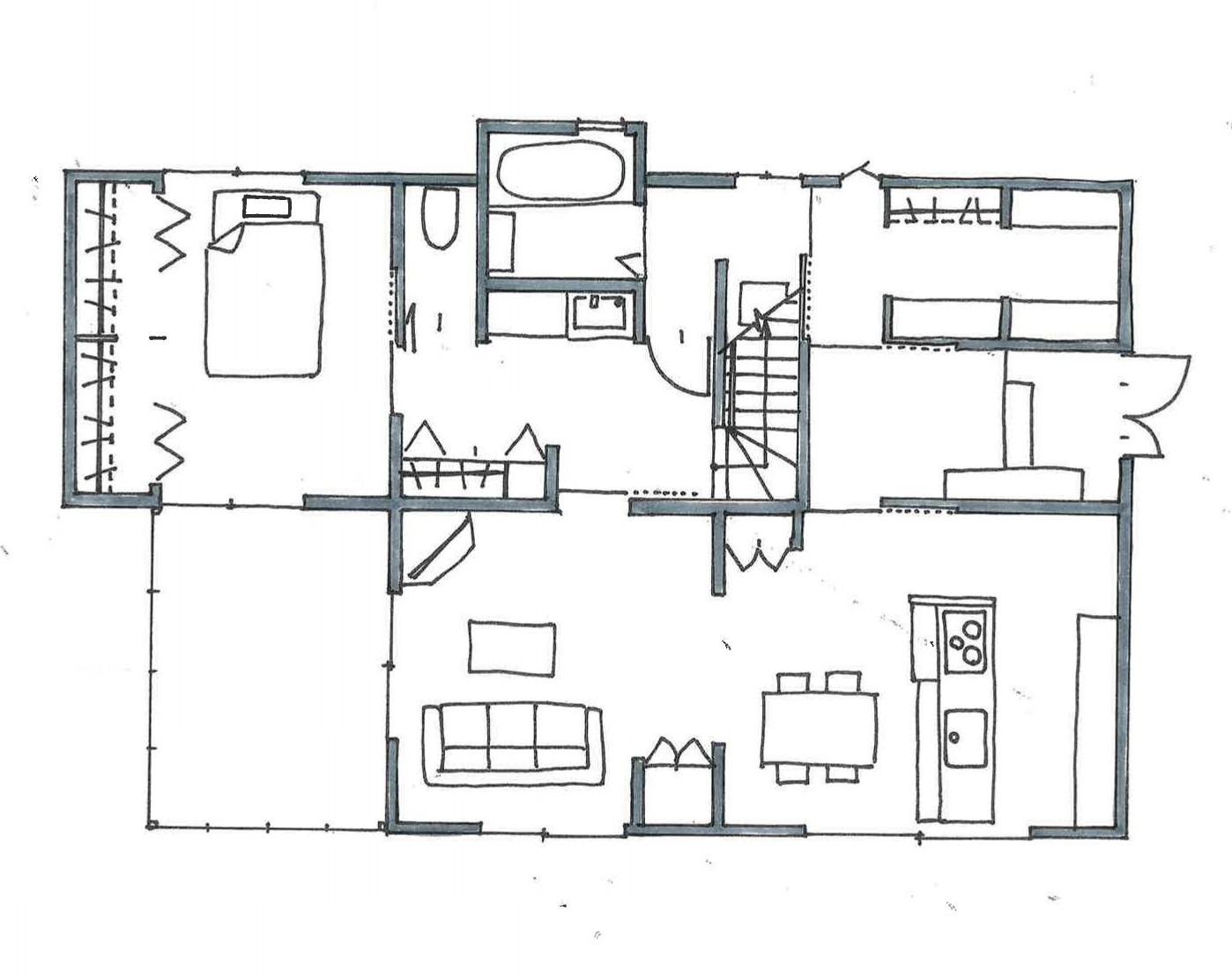
(1)愛犬とゆったり過ごす18帖のLDK
※画像はイメージです。
住まいの東面には18帖のLDKを設けました。
”東向きリビング”は西日が入らないため、午後から夕方にかけて眩しさや暑さも少なく、熱ごもりも少ないので快適に過ごせます。
奥まったスペースにも光が届き、住まい全体が明るい雰囲気になります。
隣接したサンルームも、洗濯物の乾きが一段と早く大活躍です。
愛犬とゆっくり過ごすことの出来る、あたたかな空間が完成しました。

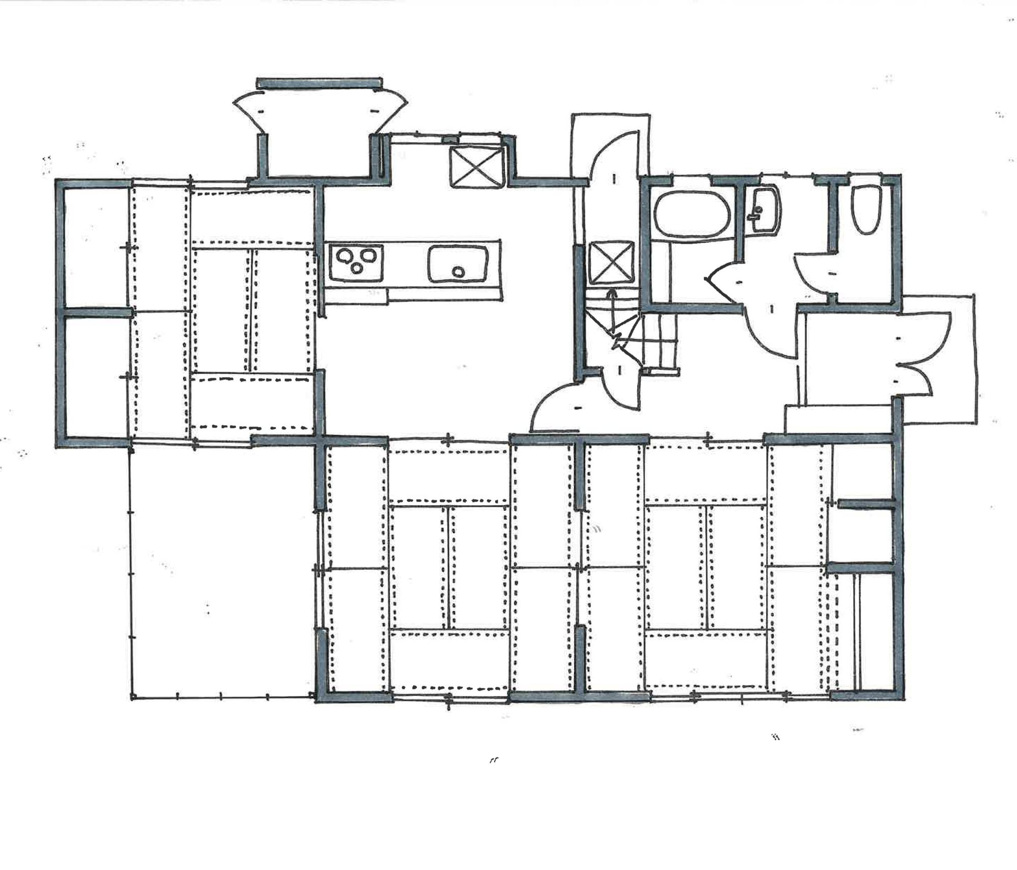
Before

After
(2)収納不足を解決!玄関横のパントリー
※画像はイメージです。
元々の住まいで特に困っていたのが、収納スペースの少なさ。
玄関横にパントリーを設けることで、迷子だった物たちに居場所を与えます。
"家で使う"にも"外で使う"にも便利な位置取りです。
(3)洗面スペースを独立させて、家族のプライバシーを確保
※画像はイメージです。
ひとつの空間になっていた洗面スペースと脱衣所を独立させました。
朝の身支度の時間でも、変に気を遣いあう必要はもうありません。
椅子のすっぽり入るカウンターで、ゆっくりと作業することができます。
(4)2台で停められる、余裕のある駐車スペースへ
※画像はイメージです。
元々の住まいは車庫が1台分しかなく、近くに駐車場を借りていました。
リノベーションを機に敷地内に2台分の駐車スペースを確保するため、車庫を解体。
雨の日も雪の日も、車からサッと住まいへ入れるようになりました。
イベント情報
■日 程│2025年8月23日(土)~8月24日(日)
■時 間│①10:00~11:00・②11:00~12:00・③14:00~15:00・④15:00~16:00・⑤16:00~17:00
■会 場│富山市豊若町(富山市立豊若小学校近く)
※個人情報ですので、ご予約いただいた方に詳しい地図をお送りします。
