








富山市にお住まいのN様邸。
隣の住宅を購入し住まわれていましたが、急な段差や狭い間取りに悩み、一軒家として住みやすいお家にリノベーションしました。
おわら風の盆の開催地域ということで、街並みに配慮した外観にしています。
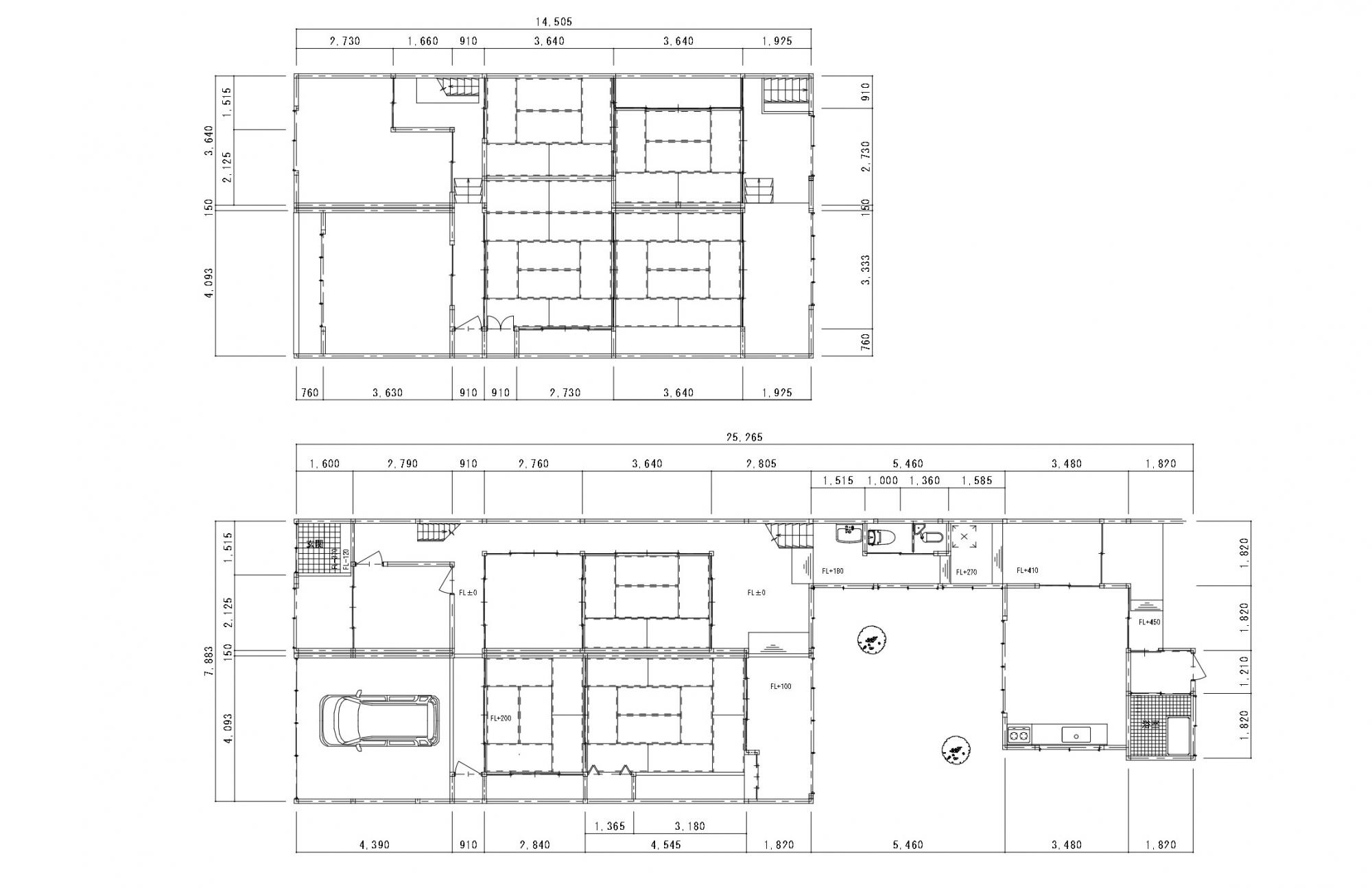
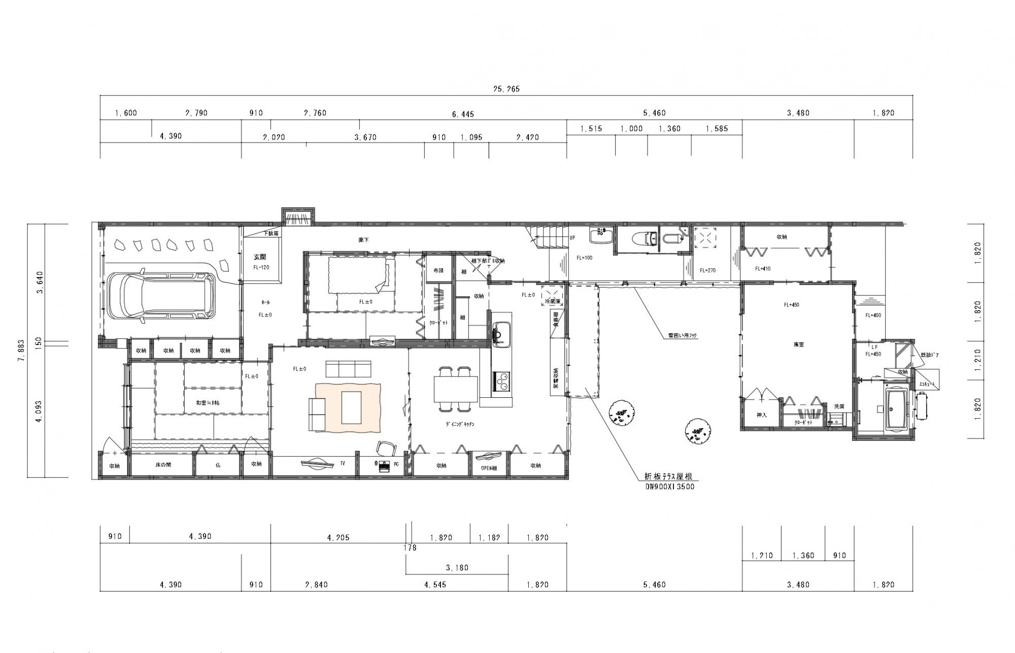
車庫と玄関が道路に直面した危険な状態から、間口を広げゆとりある空間に。
以前は別々だった車庫と玄関を一緒にし安心して過ごせる空間にしています。
また、前面には観光客の方がおわらを見れるように椅子を置いておもてなしのスペースを作りました。
LDKには空間を区切ることができるパーティションを設置。
パーティションのレールは段差がなく、バリアフリーとなっています。
風が抜けやすいように窓の配置も工夫しています。
リビングには棚とテレビボードを造作しました。
落ち着きのある和室。
壁にはテレビなどが置けるスペースを用意しました。
収納面では、布団ダンスとクローゼットを設置。
布団や洋服など、大容量に収納できるスペースとなっています。
白で統一された寝室。
施主様のご要望で、介護のための洗面台を設置しています。
こちらの住宅は断熱がなかったため、断熱材を新たに入れています。
厳しい冬もあたたかく過ごしていただけるようになりました。
また、長屋だったため、風が抜けやすいように間取りや窓の配置を工夫しています。
N様を思うバリアフリーの一軒家に生まれ変わりました。
ユニテではリノベーションが体感できるリノベージョンモデルハウスを公開中!
受付時間/ 9:00~18:00(年中無休)